
560 NW 4TH AVE Williston, FL 32696
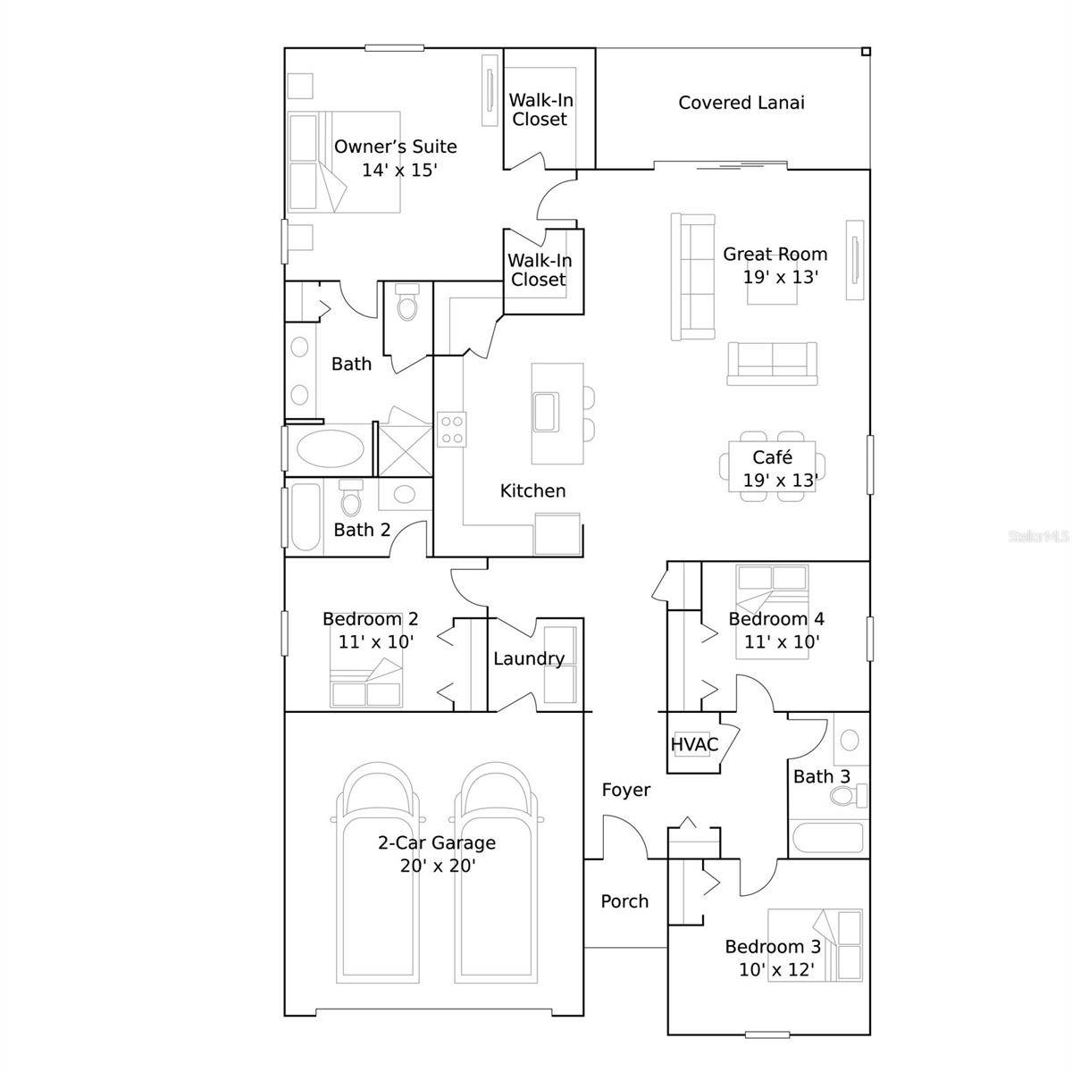
4 Beds
3 Baths
2,027 SqFt
UPDATED:
Key Details
Property Type Single Family Home
Sub Type Single Family Residence
Listing Status Active
Purchase Type For Sale
Square Footage 2,027 sqft
Price per Sqft $175
Subdivision Country Lane Estates
MLS Listing ID OM714496
Bedrooms 4
Full Baths 3
HOA Fees $256/qua
HOA Y/N Yes
Annual Recurring Fee 1024.0
Year Built 2024
Annual Tax Amount $5,476
Lot Size 10,018 Sqft
Acres 0.23
Property Sub-Type Single Family Residence
Source Stellar MLS
Property Description
The home features a private screened porch and fully fenced backyard with attractive PVC fencing, offering privacy and outdoor living space. The two-car garage adds convenience and storage.
Located in a calm, rural charm community renowned for friendly neighbors and open spaces yet with schools, shopping, and everyday needs just a short drive away. This property offers you the best of country living without sacrificing convenience. Williston schools include Williston Middle High School (grades 6–12) and Williston Elementary School (grades 3–5), plus Joyce Bullock Elementary School (Pre-K–2). For everyday conveniences and local flavor, downtown Williston offers small shops, locally owned restaurants, and many community amenities.
Whether you're raising a family, entertaining guests, or enjoying time outdoors, this home presents an ideal blend of comfort, practicality, and community minded living.
Location
State FL
County Levy
Community Country Lane Estates
Area 32696 - Williston
Zoning R-1
Interior
Interior Features Ceiling Fans(s), Eat-in Kitchen, Open Floorplan, Primary Bedroom Main Floor, Solid Surface Counters, Split Bedroom, Walk-In Closet(s), Window Treatments
Heating Central, Electric
Cooling Central Air
Flooring Carpet, Tile
Furnishings Unfurnished
Fireplace false
Appliance Dishwasher, Dryer, Electric Water Heater, Exhaust Fan, Microwave, Range, Range Hood, Refrigerator, Tankless Water Heater, Washer, Water Softener
Laundry Electric Dryer Hookup, Inside, Laundry Room, Washer Hookup
Exterior
Exterior Feature Private Mailbox, Sliding Doors
Parking Features Driveway, Off Street
Garage Spaces 2.0
Fence Vinyl
Community Features Deed Restrictions
Utilities Available BB/HS Internet Available, Electricity Connected, Fiber Optics, Natural Gas Connected, Public, Sewer Connected, Water Connected
Roof Type Shingle
Porch Covered, Rear Porch, Screened
Attached Garage true
Garage true
Private Pool No
Building
Entry Level One
Foundation Slab
Lot Size Range 0 to less than 1/4
Sewer Public Sewer
Water Public
Structure Type HardiPlank Type
New Construction false
Others
Pets Allowed Yes
Senior Community No
Ownership Fee Simple
Monthly Total Fees $85
Acceptable Financing Cash, Conventional, FHA, USDA Loan, VA Loan
Membership Fee Required Required
Listing Terms Cash, Conventional, FHA, USDA Loan, VA Loan
Special Listing Condition None


GET MORE INFORMATION
- Homes For Sale in Cape Coral, FL
- Homes For Sale in Fort Myers, FL
- Homes For Sale in Lehigh Acres, FL
- Homes For Sale in Estero, FL
- Homes For Sale in Bonita Springs, FL
- Homes For Sale in Naples, FL
- Homes For Sale in Port Charlotte, FL
- Homes For Sale in Punta Gorda, FL
- Homes For Sale in North Fort Myers, FL






